Estado
En Construcción
Tipo de Proyecto
Complejo residencia
Dimensiones
41-105 m²
Invertir en el proyecto
← Haz Click

Castillo de Sagunto — una nueva visión del confort y la vida sostenible
Castillo de Sagunto es un moderno complejo residencial ubicado en una urbanización prestigiosa y en rápido desarrollo, junto al Parque del Agua, a solo unos minutos del centro de Sagunto y de Puerto de Sagunto, y aproximadamente a 30 km de Valencia. Su excelente ubicación combina naturaleza, un rico patrimonio histórico y una moderna infraestructura urbana.
Ubicación privilegiada
A poca distancia a pie se encuentran:
- supermercados Lidl y Consum
- colegios y guarderías, incluido el CEIP Montíber
- instalaciones deportivas, entre ellas el pabellón René Marigil
- el río Palancia, rutas naturales y zonas para pasear
- el polígono industrial de Montíber, que ofrece empleo y un alto potencial de inversión
Arquitectura y viviendas
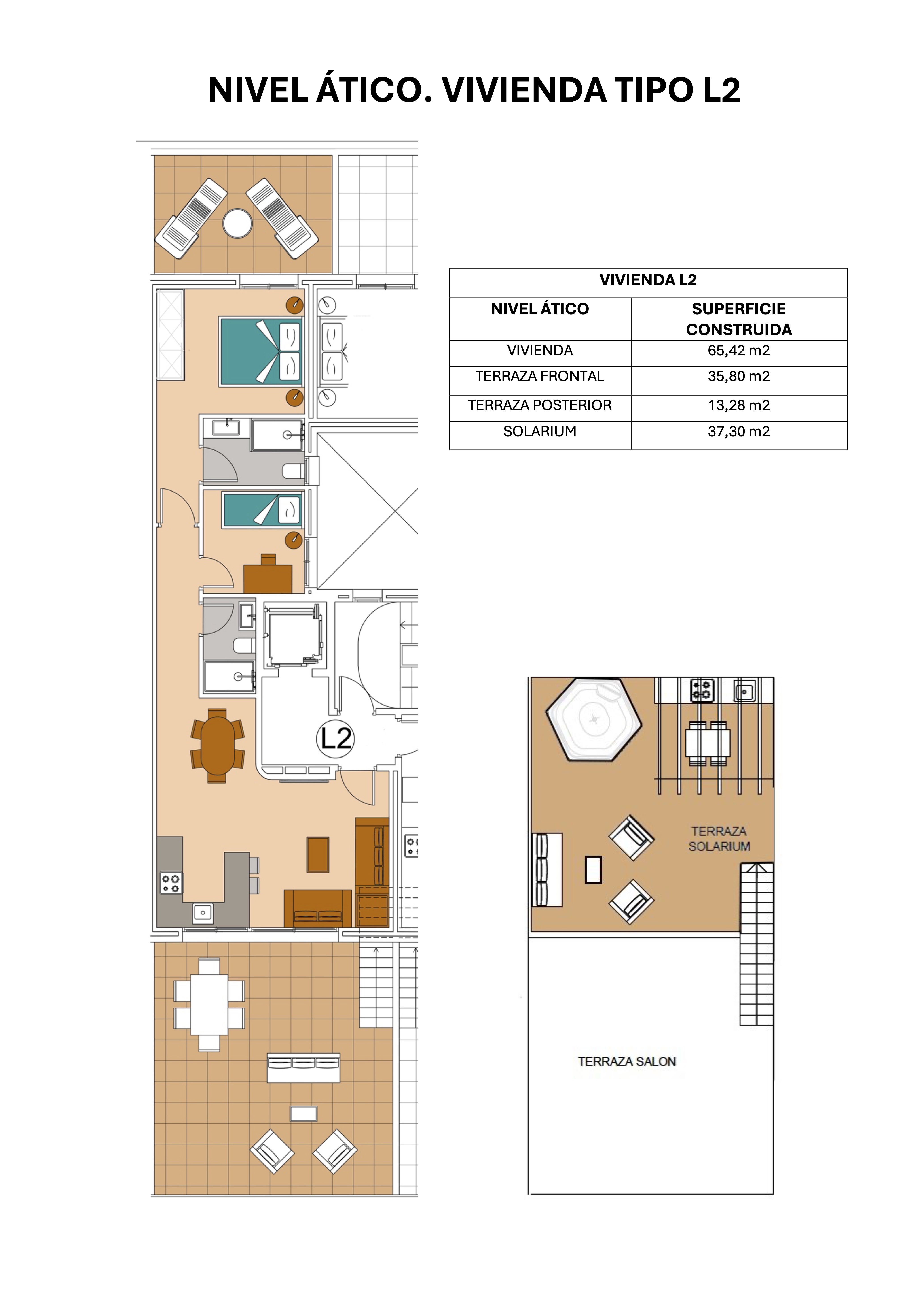
El proyecto incluye 152 viviendas modernas de 1, 2 y 3 dormitorios, así como exclusivos áticos con amplias terrazas y vistas panorámicas al Castillo Romano de Sagunto y al mar Mediterráneo.
El concepto arquitectónico crea un equilibrio ideal entre luz, espacio y confort, convirtiendo el regreso a casa en un auténtico placer.
Calidad y construcción sostenible
El complejo cumple con altos estándares de eficiencia energética y confort:
- paneles solares y sistema de autoconsumo colectivo
- aislamiento térmico y acústico de alta calidad
- ventanas con rotura de puente térmico
- preinstalación para sistemas de climatización
Acabados y equipamiento:
- pavimentos de gres porcelánico Porcelanosa o marcas premium equivalentes
- cocinas totalmente equipadas con electrodomésticos Balay (o equivalente)
- baños modernos con platos de ducha de resina mineral y revestimientos cerámicos
Infraestructura del edificio:
- aparcamiento subterráneo con preinstalación para carga de vehículos eléctricos
- trasteros privados y comunitarios
- videovigilancia, control de accesos y servicio de conserjería
Zonas comunes para vivir y disfrutar
- gran piscina con zona de relax
- gimnasio moderno totalmente equipado
- zonas ajardinadas con elementos de diseño
- complejo residencial cerrado y vigilado
Sagunto — una ciudad de oportunidades
Sagunto ofrece:
- un casco histórico con teatro romano y castillo
- Puerto de Sagunto con playas galardonadas con Bandera Azul y moderna infraestructura portuaria
- un rico patrimonio cultural y un entorno urbano bien desarrollado
- un rápido crecimiento industrial con enfoque en energías verdes, producción y parques tecnológicos
Ideal para
- familias que buscan tranquilidad, seguridad y una infraestructura desarrollada
- inversores interesados en una zona de rápido crecimiento y alto potencial
- profesionales que trabajan en Valencia y prefieren vivir cerca de la naturaleza
- compradores que valoran la eficiencia energética, la calidad y el diseño contemporáneo
Ubicación
Dirección
Sagunto, Valencia, Espana
Transporte Público
MetroBus (AVSA)
Ruta directa a Valencia,
~22 minutos
Cercanías C-5
~30 minutos hasta la estación València Nord
Autobús nº 115
Puerto de Sagunto – Valencia, ~35 minutos
