Estado
En Construcción
Tipo de Proyecto
Coliving/Coworking
Dimensiones
658 m²
Fecha de Inicio
01/11/2025
Fecha de Entrega
30/07/2027
Invertir en el proyecto
← Haz Click

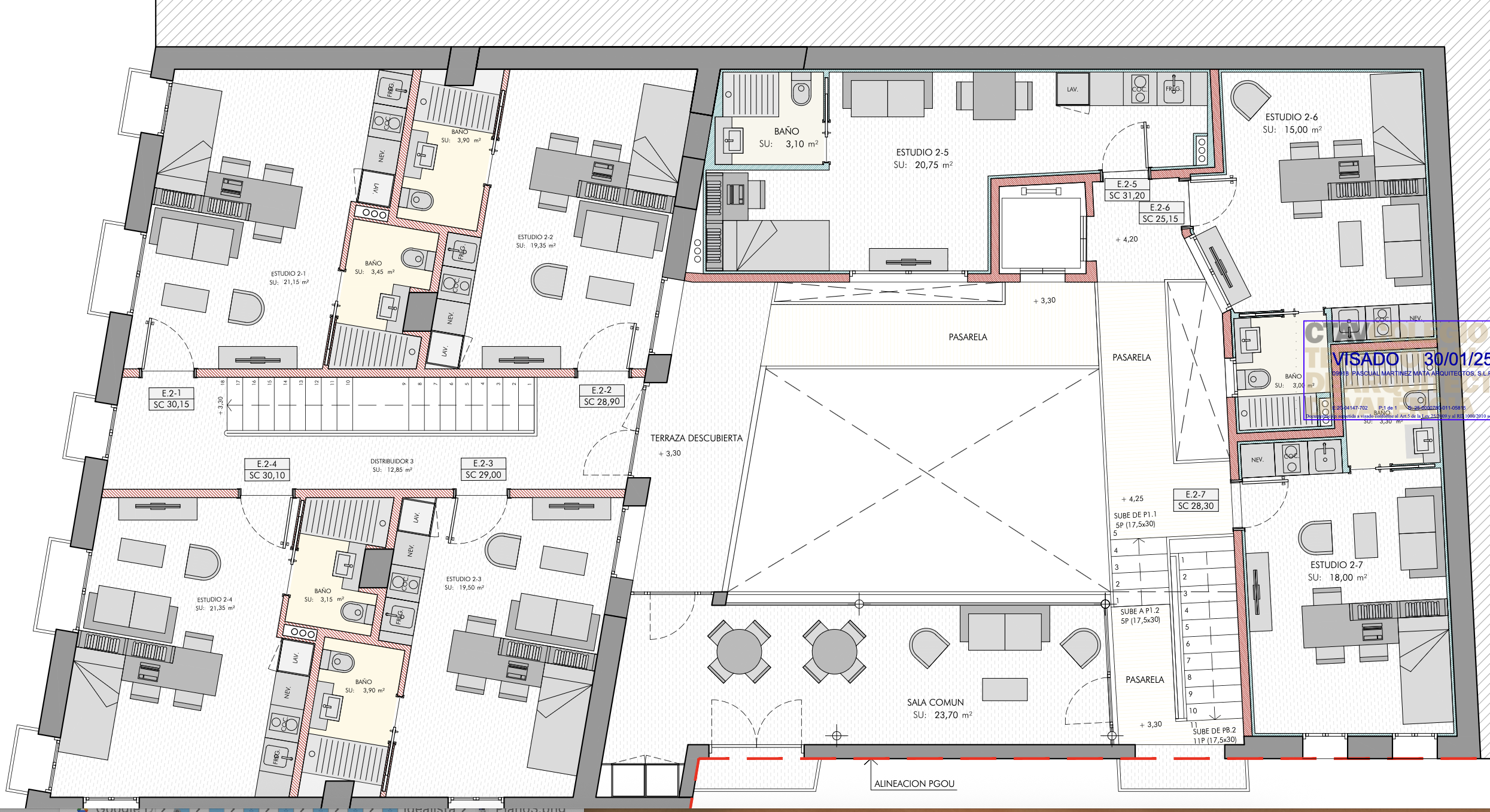
Coliving en Benimamet
FlexHub Benimamet es un espacio de coliving y coworking multifuncional diseñado para estudiantes, profesionales y emprendedores.
Cuenta con 14 estudios totalmente equipados, salones compartidos, áreas de coworking, gimnasio, lavandería y tres patios.Ubicado a solo 15 minutos del centro de Valencia, ofrece un estilo de vida vibrante y conectado.
- Area de construcción: 658 m²
- Plantas: 2 Plantas + 1 Sótano
-
Características Especiales:
Diseño flexible para uso como coliving,
coworking o híbrido; Zonas comunitarias;
Edificio energéticamente eficiente.
-
Comodidades:
14 estudios con baños y cocinas privadas
Gimnasio y Lavandería
Salón comunitario y Patios
Sistema de control de acceso
Espacio para eventos para residentes
Media
Ubicación
Dirección
C. dels Fusters 6, Benimamet, Valencia, Spain
Trasporte Público
Metro Benimamet
250m
Campus de Burjasot
8 min en coche o bici
CEU University
20 min en coche o metro
Valencia Center
15 min en coche o metro
